Milica Srećković 26 - Kragujevac, Srbija
  +381 34 206549      kontakt@idestgroup.com
     

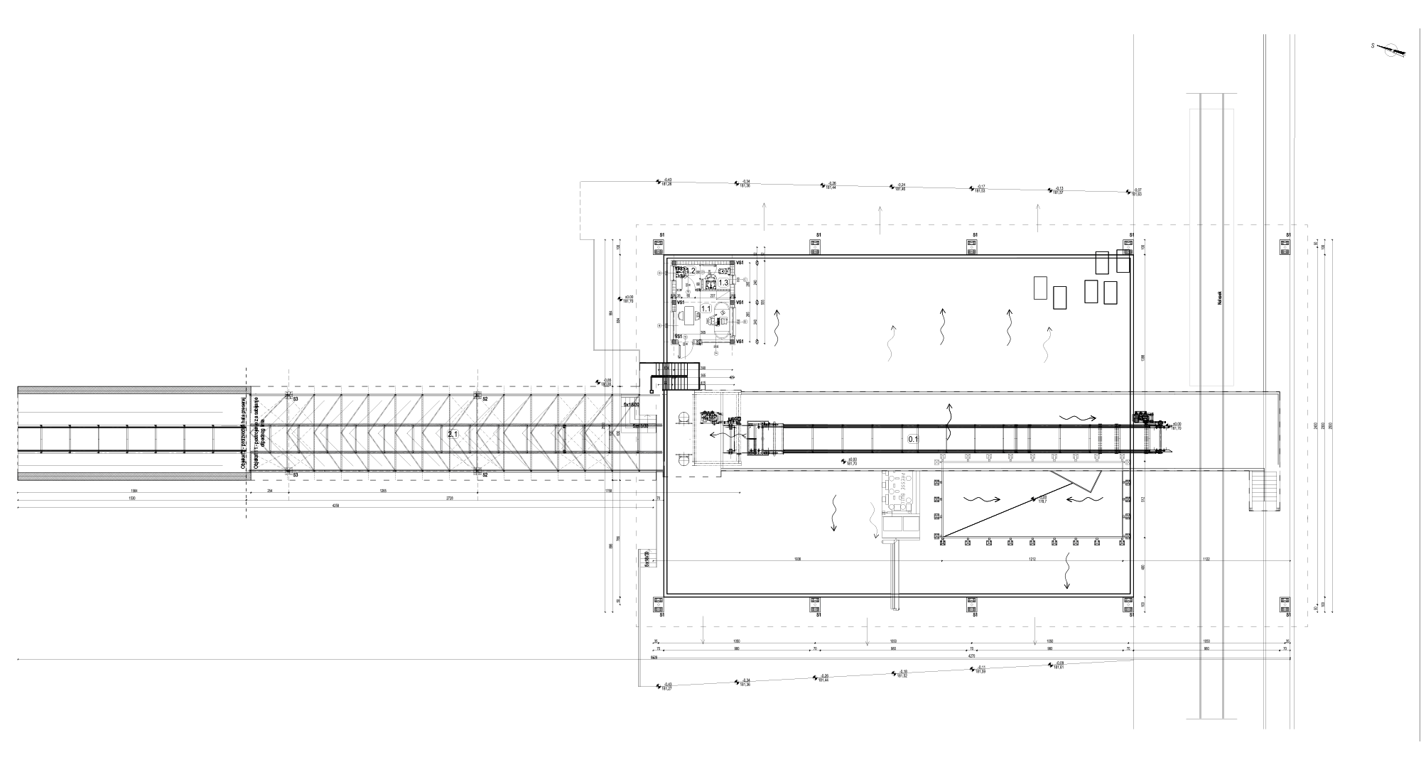
Balirnica - Postrojenje za sabijanje otpadnog lima u FCA

 2018.

eng ind civileng

Kratak opis: Projekat za izvođenje za objekat Balirnice izrađuje se sa ciljem dobijanja saglasnosti MUP-a

Lokacija: FCA Srbija, Kragujevac

Godina: 2018

Faze: Projekat za izvođenje (PZI)