Milica Srećković 26 - Kragujevac, Srbija
  +381 34 206549      kontakt@idestgroup.com
     

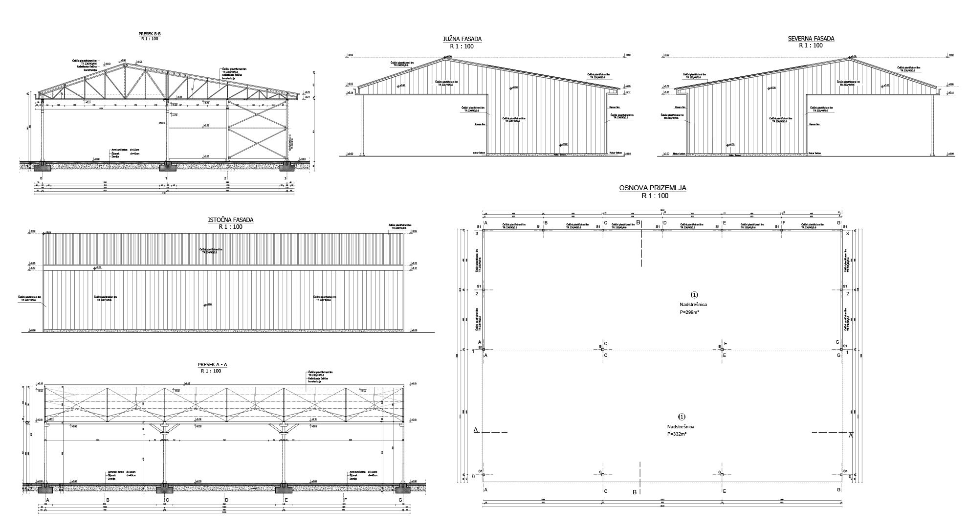
Nadstrešnica PMC-a

 2015.

eng ind civileng

Kratak opis: Izrada projekta za građevinsku dozvolu za izgradnju nadstrešnice PMC-a

Površina: cca 670m² 

Investitor: FCA Srbija

Lokacija: Kragujevac, Srbija

Godina: 2015.

Faze: Projekat za građevinsku dozvolu