Milica Srećković 26 - Kragujevac, Srbija
  +381 34 206549      kontakt@idestgroup.com
     

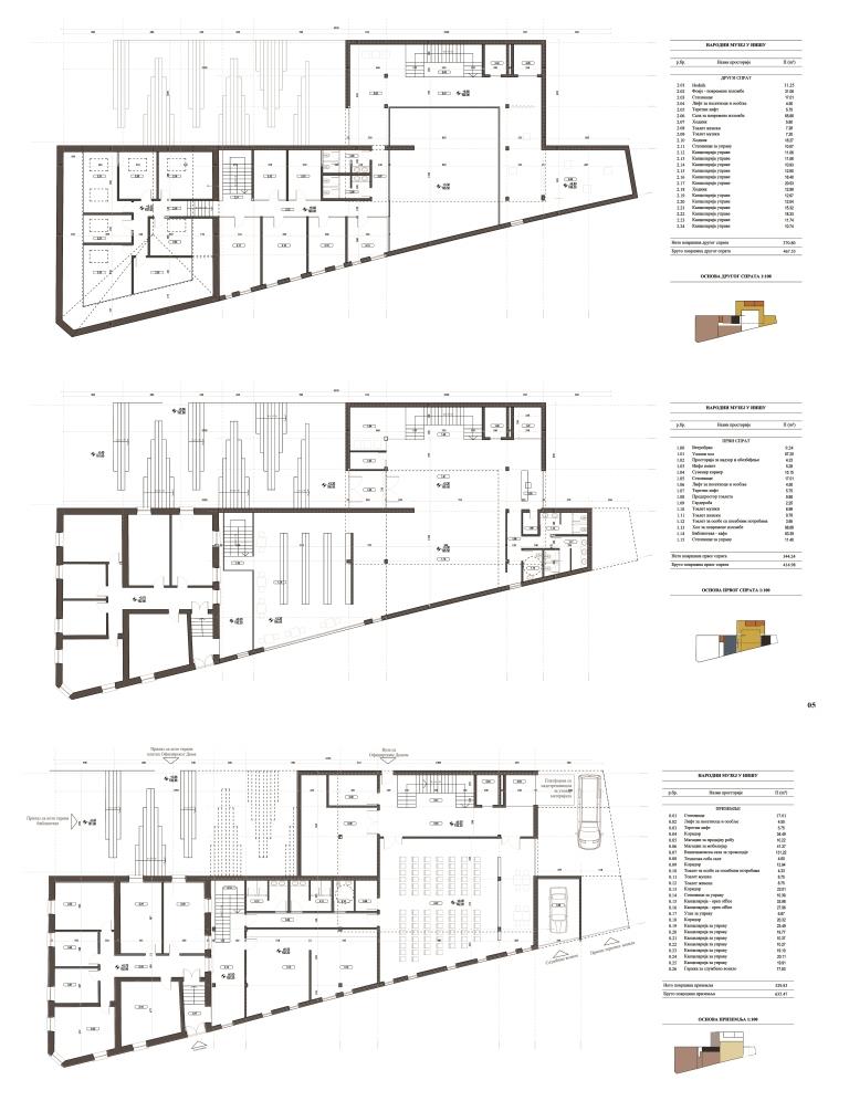
Narodni muzej Niš

 2020.

arch build

Površina: 2300 m²

Lokacija: Niš

Godina: 2020

Faze: Konkurs


Specifičnost date lokacije se odražava u prisutnom kulturnom nasleđu koje se zadržava i štiti (Oficirski dom i zgrada stare biblioteke), vizurama koje ostvaruje (vidnost sa reke i tvrđave). Lokacija je smeštena u okviru urbanog gradskog jezgra, blokovskog tipa, pri čemu se parcela ima tedenciju usmerenosti ka parku ispred.

Arhitektonsko - urbanistički koncept objekta

U pogledu forme objekat muzeja se sastoji iz horizontalnog dela, uz regulacionu liniju ulice Jeronimove čime zadržava strukturu bloka, i vertikalnog - kule, maksimalne spratnosti P+6.

Oblikovno, horizontalni objekat predstavlja prirodni nastavak stare biblioteke, objekta koji se štiti i koja se uranja u strukturu novog objekta, čime jedna fasada biblioteke (unutrašnja) postaje deo enterijera objekta.

Fasada horizontalnog objekta se projektuje tako da se on čita kao moderan, gde se ističe njegova ortogonalnost i čista forma. Fasada je u celoj svojoj površini ka ulici istovetno obrađena, kombinacijom belih ploča i fasadnih otvora. Kako materijalizacija ovde oslikava čist i savremen objekat, tako se objekat stare biblioteke dodatno ističe i naglaša kontrastom.

Funkcionalno, stara biblioteka i horizontalni deo muzeja se povezuju svojim sadržajima. Direktna veza ostvaruje se preko administrativne namene, tj. kancelarijskih prostora. Fasadni zid biblioteke, koji je orijentisan ka unutrašnjosti bloka postaje deo enterijera novog horizontalnog objekta.

Vertikalni deo muzeja – kula, uvlači se unutar parcele i bloka, povlači od regulacione linije i svojom pozicijom uslovljava formiranje javnog gradskog prostora. Javni prostor je i prilazno stepenište muzeju, koje se projektuje kao dostupno za invalide, kombinovanjem stepeništa i rampi odgovarajućeg nagiba. Ovaj javni gradski prostor se direktno povezuje sa susednim, ispred objekta Oficirskog doma. Rampama se savladava postojeća denivelacija na terenu.

Deo ovog javnog prostora postaje i kalkanski zid objekta stare biblioteke, koji se produžuje, iscrtava muralom i uvlači u kulu. Na ovaj način se ostvaruje veza kule i stare biblioteke i naglašava značaj objekta muzeja

Kod projektovanja kule koristi se princip interpolacije, što se vidi u izgledu objekta, posmatrano sa strane trga ispred Oficirskog doma. Kula interpolira se postojećim istorijskom objektima i smicanjem planova u odnosu na regulaciju (bivša biblioteka - Oficirski dom - muzej) kula oblikovno ne ugrožava postojeće objekte.

Inspiracija za materijalizaciju kule potiče iz neposrednog okruženja. Ona je prirodna, kamena, teksturisana, slične nijanse kao tvrđava. Kamen je osnovni gradivni element Niške tvrđave pa je i ovde primenjen kao element oblikovanja i inspiracija upotrebe tradicionalnog materijala na inovativni način. On prodire kroz fasadu, cepa je i postaje i dominantan deo enterijera. Uvlačenjem fasadne obrade se gubi jasna granica između enterijera i eksterijera.

Deo jake kamene fasade se prošupljuje zonalno i ostvaruje se ulaz prirodne svetlosti i naglašavanje vizura sa vicine poslednje etaže čime se ostvaruje atraktivni ambijent.