Milica Srećković 26 - Kragujevac, Srbija
  +381 34 206549      kontakt@idestgroup.com
     

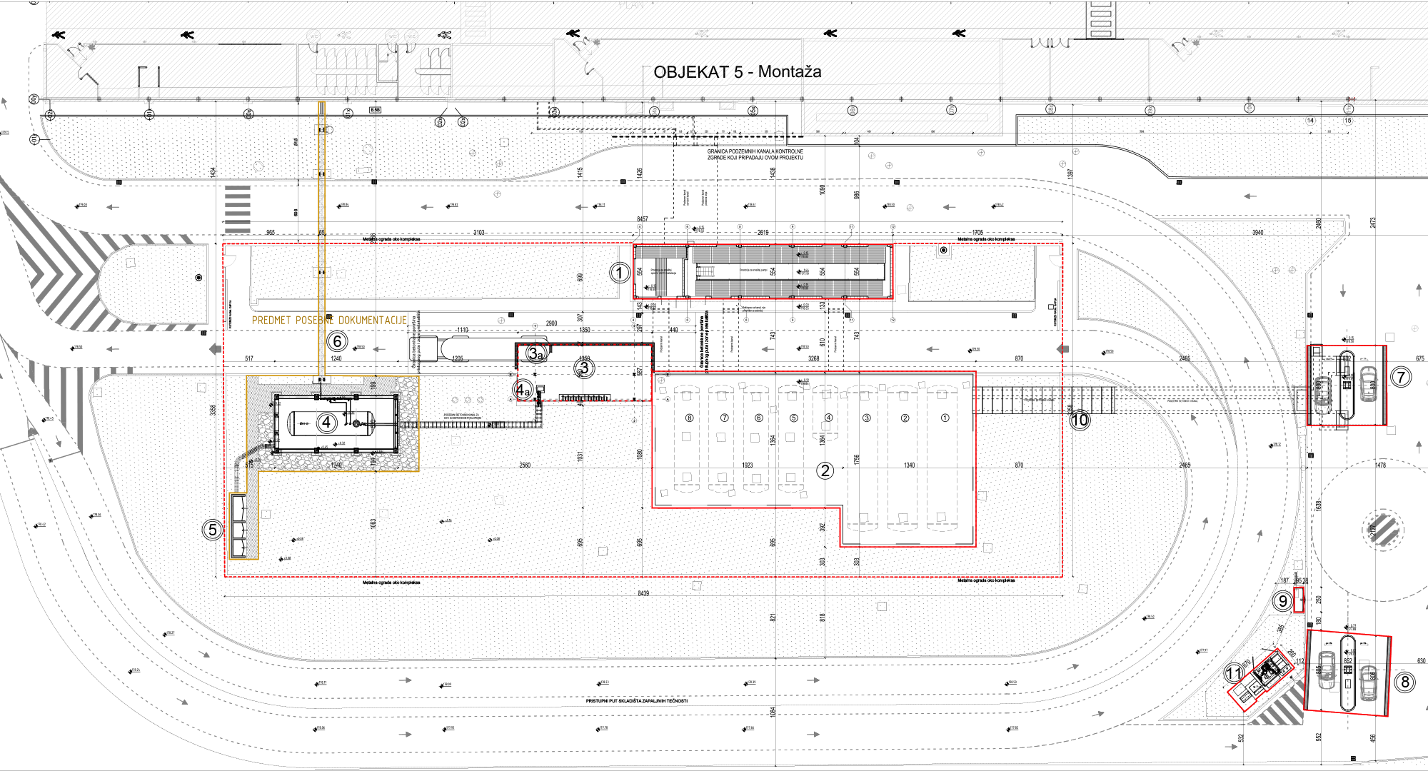
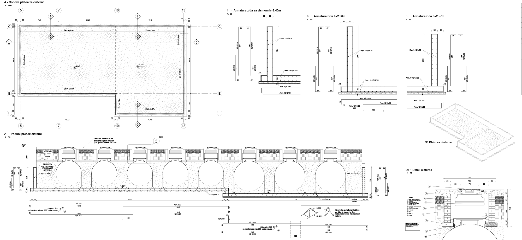
Objekat 64 - Skladište zapaljivih tečnosti sa pumpnom stanicom u FCA

 2017.

eng ind civileng

Kratak opis: Rekonstrukcija i dogradnja benzinske stanice za snabdevanje motornih vozila pogonskim gorivom

Površina: 773,70 m², ukupna zapremina rezervoara 500 m³

Investitor:FCA Srbija

Lokacija: Kosovska 4, Kragujevac

Godina: 2014-15-16-17

Faze: Idejno rešenje/Idejni projekat; Tenderska dokumentacija; Projekat za izvođenje;