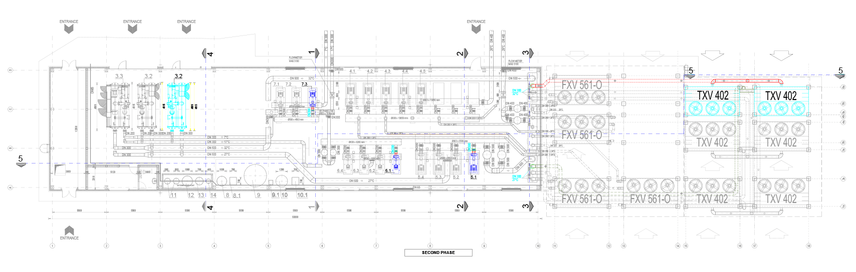
Rashladna mašina u Lakirnici u FCA
2014.
eng ind instal
Kratak opis: Rashladna mašina u Lakirnici u FCA
Investitor: FCA Srbija
Godina: 2014.
Lokacija: Kragujevac, Srbija
Faze: Projekat za izvođenje
2014.
eng ind instal
Kratak opis: Rashladna mašina u Lakirnici u FCA
Investitor: FCA Srbija
Godina: 2014.
Lokacija: Kragujevac, Srbija
Faze: Projekat za izvođenje
Copyright © 2026 Idest d.o.o. Sva prava su zadržana.