Milica Srećković 26 - Kragujevac, Srbija
  +381 34 206549      kontakt@idestgroup.com
     

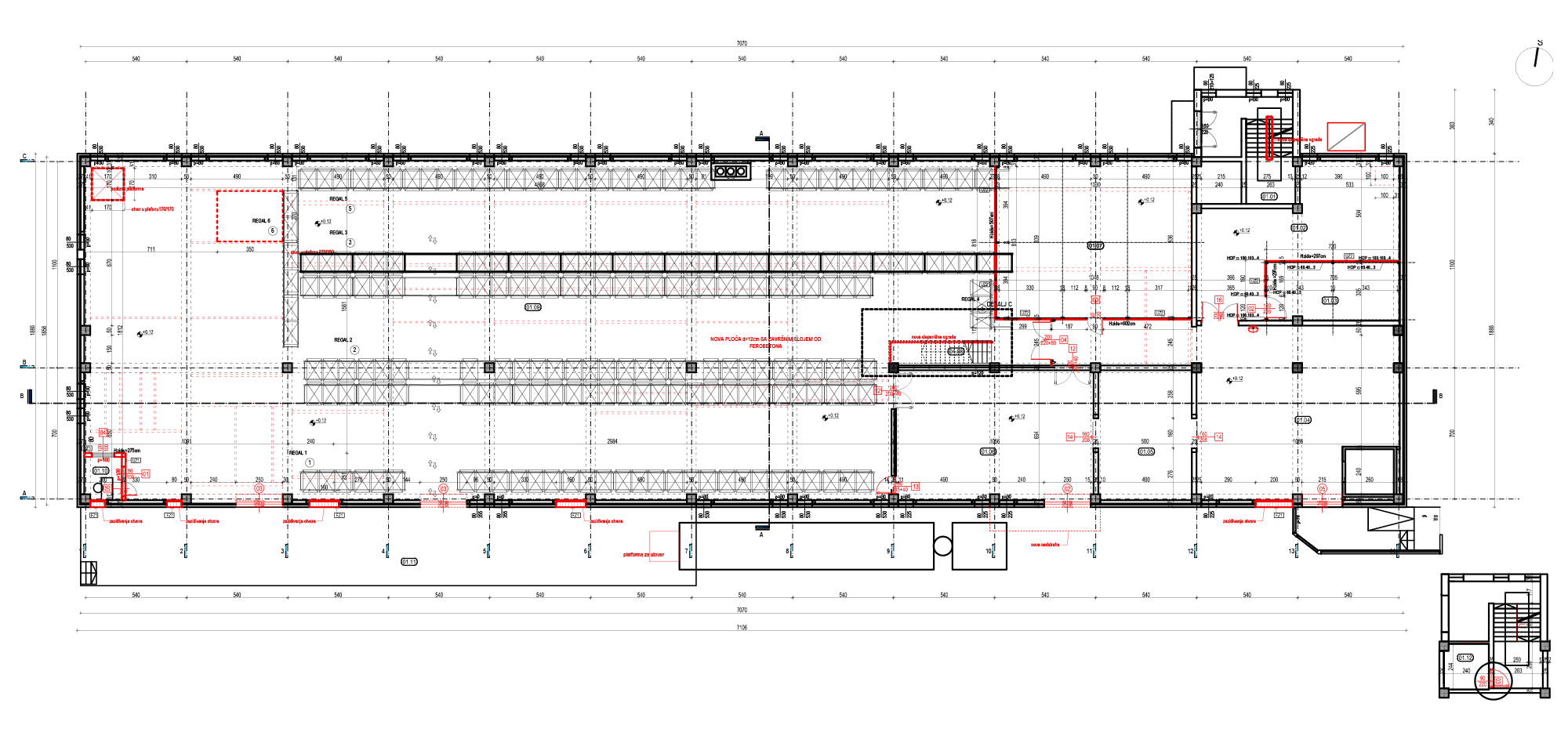
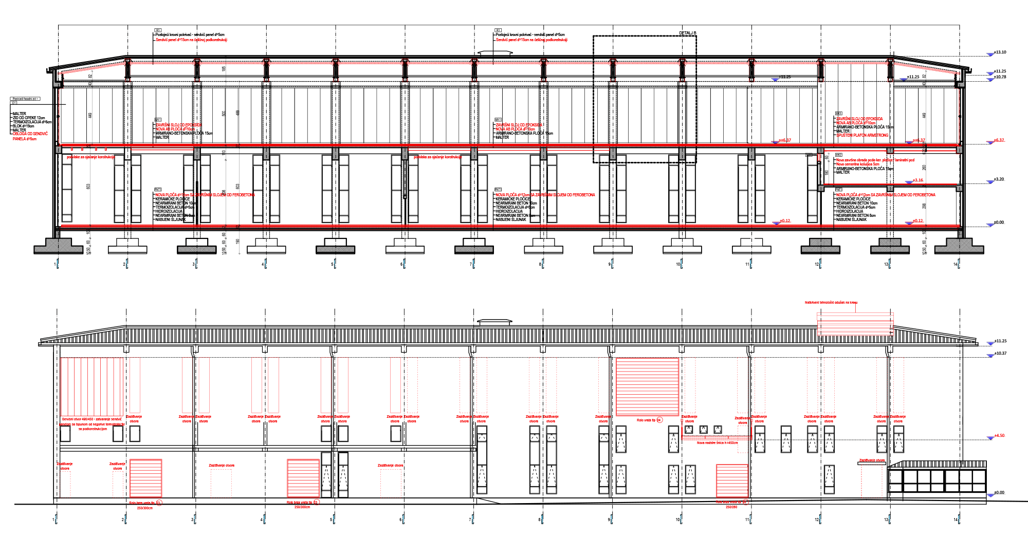
Rekonstrukcija fabrike Don-Don

 2016.

eng ind civileng ee arch

Kratak opis: Izrada projektne dokumentacije za rekonstrukciju i dogradnju novog pekarskog pogona u okviru fabrike pekarskih proizvoda Don-Don (bivši Žitoprodukt).

Površina: 3.375 m²

Naručilac: Technosector doo

Lokacija: Kragujevac

Godina: 2016-17

Faze: Idejno rešenje/Idejni projekat; PGD projekat za građevinsku dozvolu; PZI Projekat za izvođenje