Milica Srećković 26 - Kragujevac, Srbija
  +381 34 206549      kontakt@idestgroup.com
     

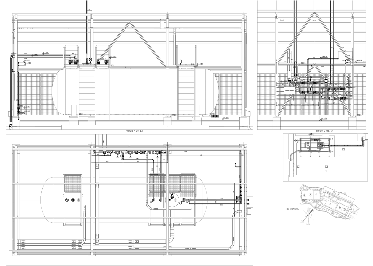
Rezervoar rashladne tečnosti HFO, FCA Srbija

 2015.

eng ind civileng instal arch

Kratak opis: Izgradnja sistema za skladištenje i distribuciju rashladne tečnosti za proizvedene automobile.

Zapremina (rezervoara): 30 m³

Investitor: FCA Srbija

Lokacija: Kosovska 4, Kragujevac

Godina: 2015-16

Faze: Idejno rešenje/Idejni projekat; Tenderska dokumentacija; Stručni nadzor.