Milica Srećković 26 - Kragujevac, Srbija
  +381 34 206549      kontakt@idestgroup.com
     

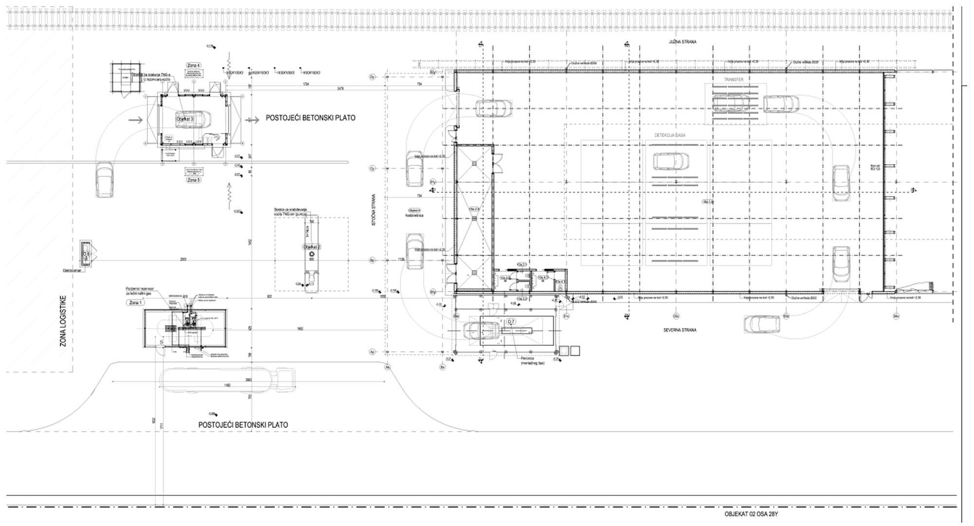
TNG točeća stanica, FCA

 2015.

eng civileng ind

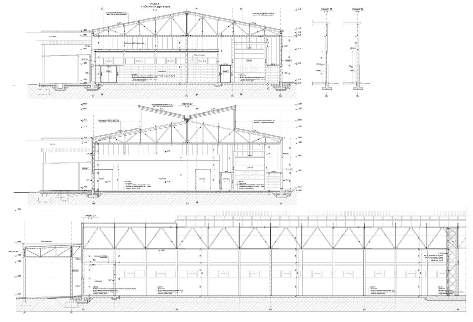
Kratak opis: Objekat za testiranje vozila na TNG (Tečni Naftni Gas) sa prostorom za skladištenje gasa, utakanje/istakanje, servisiranje i logistiku.

Postojeći objekat ZGRADA 10, se nalazi u neposrednoj blizini hale ZGRADE 2 i hale ZGRADE 6 u okviru kompleksa fabrike Zastava-Automobili, Kragujevac. Tokom faza rekonstrukcije objekat je podeljen na dve funkcionalne celine, tj dve faze rekonstrukcije: zona objekta 10A od ose 00x-04x i zona objekta 10B od ose 04x-14x.

Ukupna površina: 3.163,70 m² , zapremina rezervoara 15 m³

Investitor: FCA Srbija

Lokacija: Kosovska 4, Kragujevac

Godina: 2015-16

Faze: Idejno rešenje/Idejni projekat; tenderska dokumentacija; PZI - Projekat za izvođenje