Milica Srećković 26 - Kragujevac, Srbija
  +381 34 206549      kontakt@idestgroup.com
     

Trening akademija, FCA

 2014.

eng ind civileng

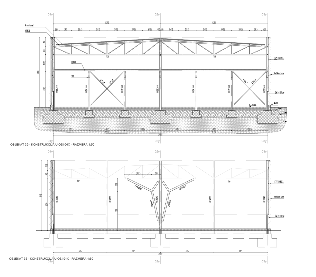
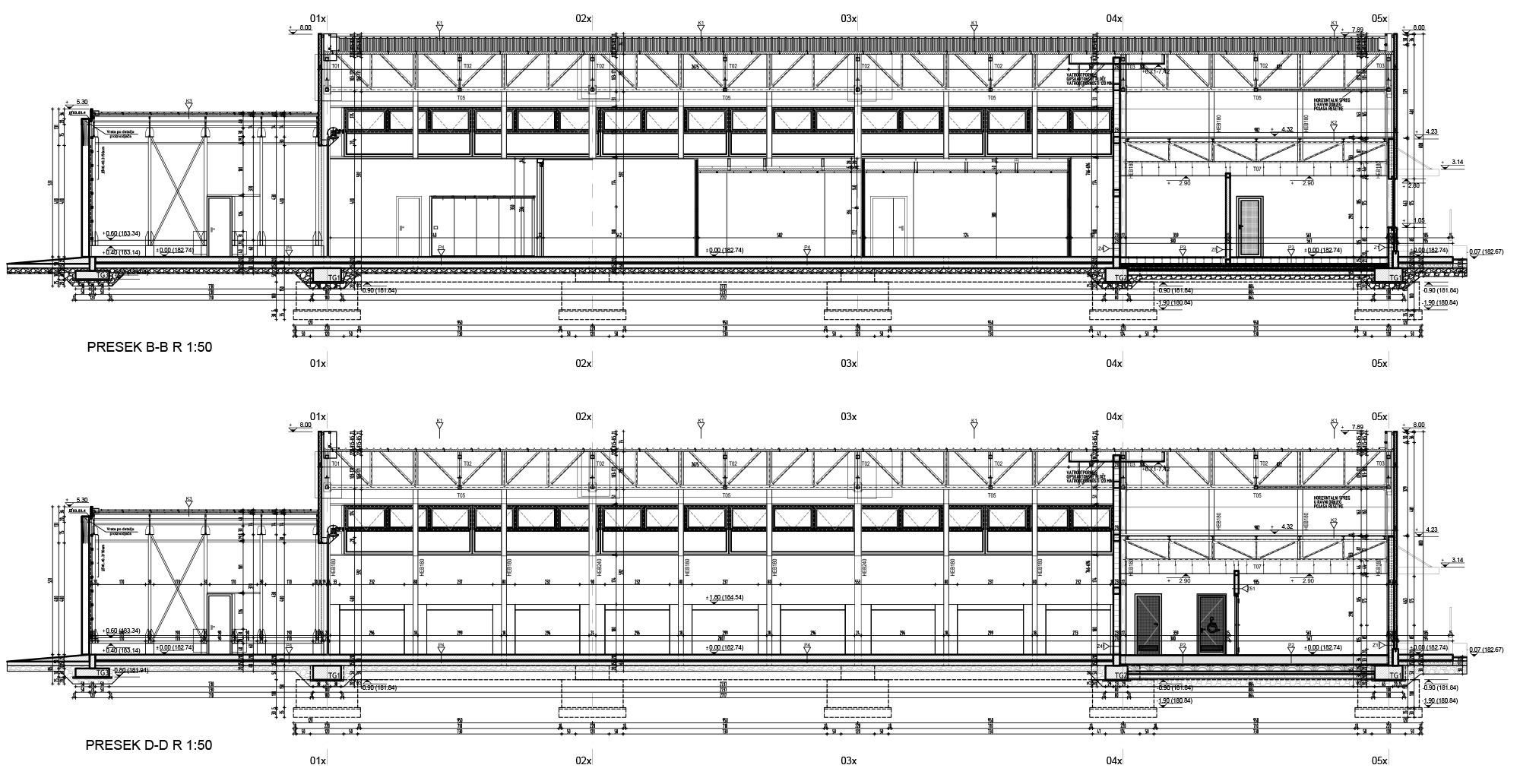
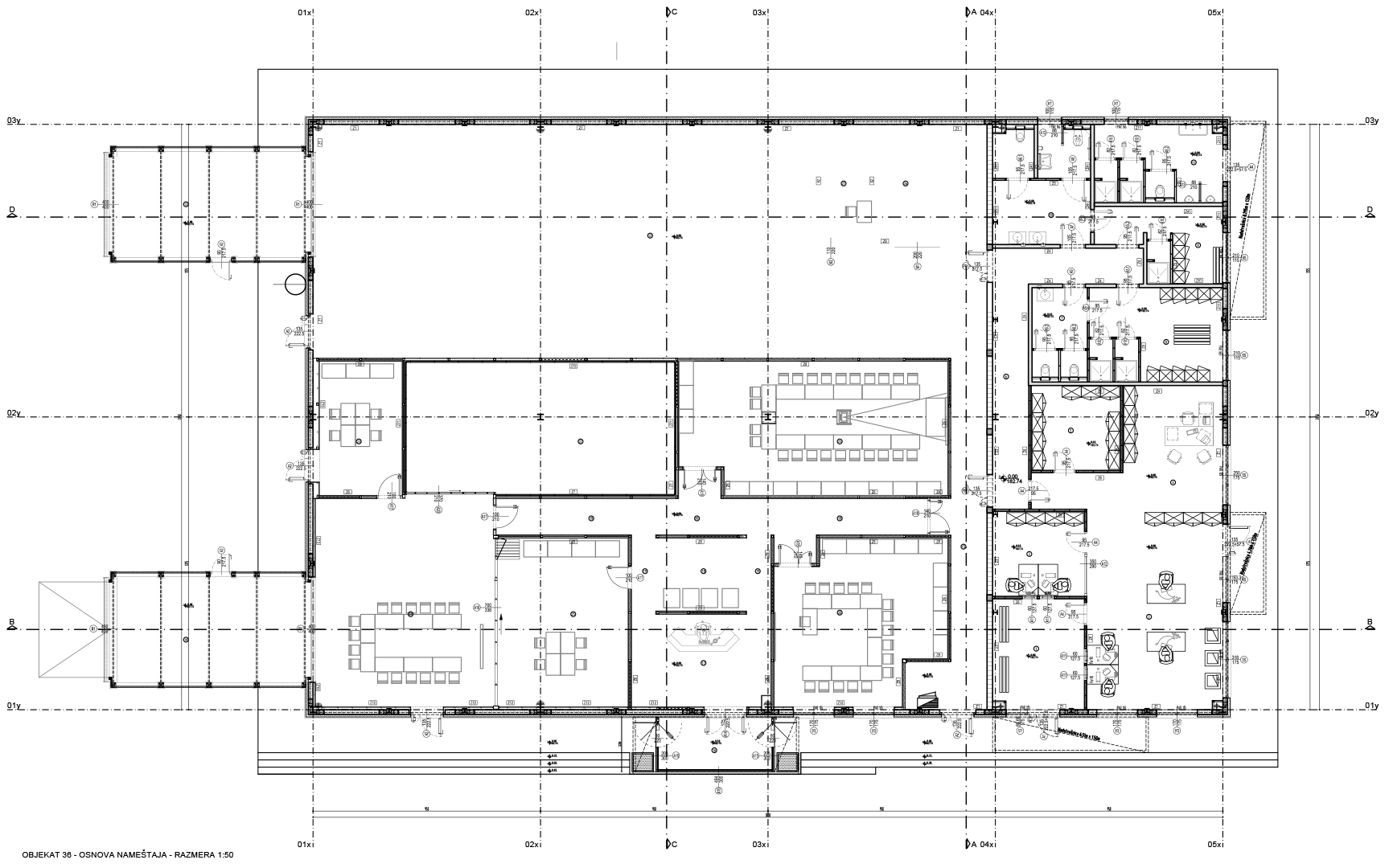
Kratak opis: Izgradnja objekta za obuku radnika

Površina: 1.362,20 m²

Investitor: FCA Srbija

Lokacija: Kosovska 4, Kragujevac

Godina: 2014-15

Faze: Idejno rešenje/Idejni projekat; Tenderska dokumentacija; Glavni projekat; Stručni nadzor